Arcad-A

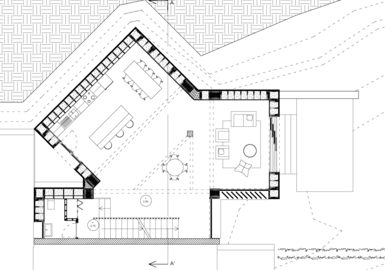
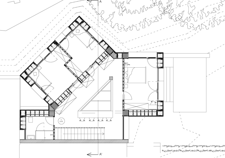
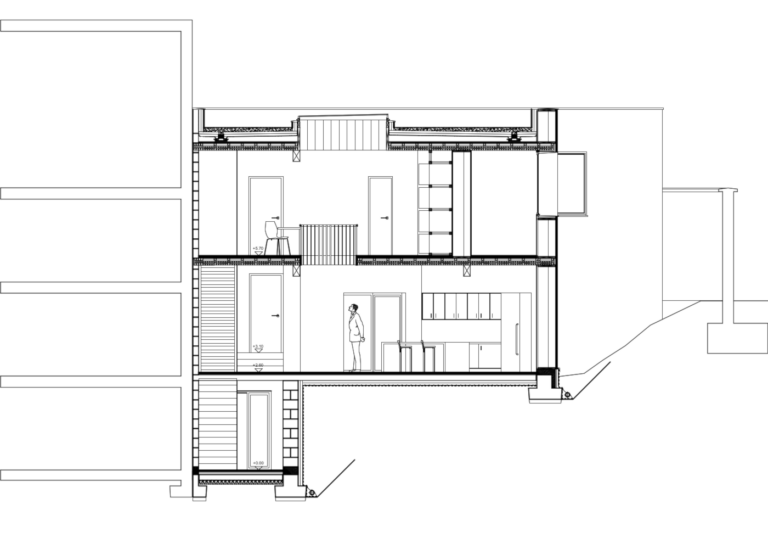
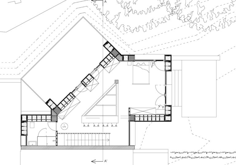
The project is located in Uccle at the end of a dead end. The house is integrated into the steep slope of the site and is articulated to look either to the garden or to the protected natural area that borders the site.

The house is modular and can go from a duplex to a house with 3 bedrooms.
The construction technique in wood frame and straw filling allows this extension without additional heavy work. The wooden house comes to rest on a solid concrete base making the junction with the ground.

Years : 
Location
Type
Collaborator(s)

2018
Uccle
Housing
Valentin Foulon